阿克陶县2025年诺库其艾日克村道路建设项目使用林地的公示
| 索 引 号 | K45893645/2025-00960 | 主题分类 | |
| 名 称 | |||
| 主 题 词 | 项目使用林地 | 成文日期 | 2025-04-23 19:06 |
| 文 号 | 〔〕号 | 发布日期 | 2025-04-23 19:06 |
| 发文单位 | 阿克陶县自然资源局 | 发布机构 | 阿克陶县自然资源局 |
2025年4月7日,阿克陶县交通运输局申请阿克陶县2025年诺库其艾日克村道路建设项目使用林地,根据《中华人民共和国行政许可法》、《中华人民共和国森林法实施条例》、国家林业和草原局《建设项目使用林地审核审批办法》及《建设项目使用林地审核审批管理规范》的规定,现将有关情况公示如下:
一、建设项目名称:阿克陶县2025年诺库其艾日克村道路建设项目
二、建设项目批准单位及文号:阿克陶县发展和改革委员会《关于阿克陶县2025年诺库其艾日克村道路建设项目可行性研究报告(代项目建议书)的批复》(陶发改项目〔2025〕67号)文件、阿克陶县交通运输局《关于阿克陶县2025年诺库其艾日克村道路建设项目一阶段施工图设计的批复》(陶交字〔2025〕11号)文件
三、拟占用林地单位:阿克陶县交通运输局
四、被占用林地单位:阿克陶县阿克陶镇人民政府
五、该项目需在阿克陶县境内拟使用林地面积0.2486公顷,全部为长期使用林地,地类为乔木林地。
经使用林地技术咨询单位、施工单位、林草、自然资源局等相关部门调查组现场调查后共同确认,阿克陶县2025年诺库其艾日克村道路建设项目拟使用林地面积为0.2486公顷,项目使用林地共涉及1个林班3个小班,为542林班的46、62、81小班,属于阿克陶镇诺库其艾日克村,林地权属为集体,林木权属为个人。
1)按使用林地性质划分:长期使用林地面积0.2486公顷;
2)按地类划分:全部为乔木林地;
3)按林地权属划分:全部为集体林地;
4)按林地保护等级划分:全部为III级保护林地;
5)按森林类别划分:全部为地方公益林;
6)按使用林地类型划分:全部为防护林林地;
7)按林种划分:全部为农田牧场防护林;⠼/span>
8)按起源划分:全部为人工林;
9)按拟采伐优势树种统计:本项目拟采伐优势树种为杨树、沙枣、胡杨、榆树、桑树,共计采伐2130棵,蓄积为253.3m3,其中,拟采伐杨树1632棵,蓄积为224.7m3,胸径5cm以下有210棵,胸径5-15cm有730棵,蓄积为20.8m3,胸径15-30cm有372棵,蓄积为70.4m3,胸径30cm以上有320棵,蓄积为133.5m3;拟采伐沙枣420棵,蓄积为25.7m3,胸径5cm以下有56棵,胸径5-15cm有258棵,蓄积为8m3,胸径15-30cm有106棵,蓄积为17.7m3;拟采伐胡杨52棵,蓄积为2.7m3,胸径5cm以下有18棵,胸径5-15cm有22棵,蓄积为0.7m3,胸径15-30cm有12棵,蓄积为2m3;拟采伐榆树6棵,蓄积为0.2m3,胸径为5-15cm;拟采伐桑树20棵,胸径为5-15cm。
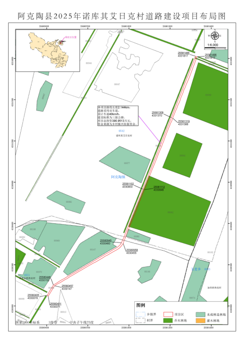
六、拟占用林地选址:(小地名、四至如图)
本项目位于克州阿克陶县阿克陶镇诺库其艾日克村、其克尔铁热克村。
建设内容:本项目路线长度2.144km,道路采用双车道,设计车速40km/h,建设标准为三级公路。

我局拟对该申请进行审核上报,相关单位和个人对该申请选址范围内的林地、林木权属有异议的,请于2025年4月23日—2025年4月29日(不少于5个工作日)期间向我局反映,逾期不受理。
联系单位:阿克陶县自然资源局
联系电话:0908-5725606 联系人:艾则孜江·居麦
公示期间如无异议,我局将根据该公示内容予以审核上报。
阿克陶县自然资源局
2025年4月23日
